设为首页
|
加入收藏
|
联系我们
主营产品:装配式热电阻|硅橡胶扁电缆|电接点压力表|磁翻柱液位计|计算机电缆|橡套电缆
产品
新闻
首页
产品展示
公司简介
企业简介
联系方式
资质荣誉
新闻资讯
企业动态
业内资讯
技术支持
行业标准
销售热线
产品分类
工业热电偶
工业热电阻
压力表系列
双金属温度计
无纸记录仪
压力变送器
罗斯蒙特3051型压力变送器
温度变送器
智能显示仪表
液位计/流量计/安全栅
电气装备用电缆
电力电缆
桥架系列
梯级式电缆桥架
托盘式电缆桥架
槽式电缆桥架
大跨距电缆桥架
抗腐蚀铝合金桥架
阻燃玻璃钢桥
阻燃防火桥架
桥架立柱
低压力开关柜
高压开关设备
汇线桥架
组合式电缆桥架
光纤光缆
特种电缆
特殊热电偶/热电阻
氟塑料粒料系列
温度传感器
光纤光栅传感器/网络分析仪
非接触式温度计
检验仪表
电量变送器
电量变送器
霍尔传感/变送器
温度/湿度变送器
开关量变送器
电压监控仪表
电流电压互感器
变压器档位变送器
智能电力监测仪
数字显示调节仪
管件与阀门
管件与仪表附件
仪表阀门与阀组
防爆管件
流量测量装置
低压配电柜
高低压母线
其他
代理产品
罗斯蒙特
香港昌晖仪表
站内搜索
产品资料
新闻资料
联系方式
热线:0550-7095498
传真:0550-7855052
手机:18955097698
网址:
http://www.tzybdl.com
邮箱:tzybdl888@163.com
地址:安徽省天长市经济开发区
当前位置:
首页
-
产品中心
-
低压配电柜
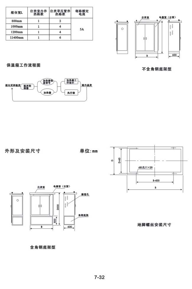
PWX、PFX系列-保温、保护箱
产品名称:PWX、PFX系列-保温、保护箱
产品编号:Pro2008659141
产品型号:
市场价格:
面议
元/
批发价格:
面议
元/
更新时间:2010.05.05
出品单位:安徽埃克森科技集团有限公司
浏览次数:
产品详细介绍
Copyright 2011
www.tzybdl.com
All rights reserved. 网站地图:
sitemap.xml
地址:安徽省天长市经济开发区 销售热线:0550-7095498 传真:0550-7855052 E-mail:tzybdl888@163.com